Details
Cranleigh Road, Fareham, PO16
OIEO £400,000
(Sold Subject To Contract)
Description
Nestled in the desirable area of Cranleigh Road, Portchester, this charming end terrace house presents a wonderful opportunity for those seeking a family home with great potential. Boasting two spacious reception rooms, this property offers ample space for both relaxation and entertaining. With three well-proportioned bedrooms, it is ideal for families or those looking to create a comfortable living environment.The house features a single bathroom, catering to the needs of modern living. One of the standout attributes of this property is its rarely available corner plot location, providing a sense of privacy and space that is often hard to find. The generous parking area accommodates up to four vehicles, ensuring convenience for residents and guests alike.For those with a vision, there is significant potential to extend the property at both the side and rear, allowing for further enhancement to suit your personal needs. The superb enclosed south-facing garden is a true highlight, offering a perfect outdoor retreat for relaxation, gardening, or entertaining during the warmer months. Situated just a short walk away from the shoreline, this home not only provides a peaceful residential setting but also easy access to the beautiful coastal scenery. While the property is in need of some updating, it presents a fantastic opportunity to create a bespoke living space tailored to your tastes. This is a rare find in a sought-after location, making it a must-see for prospective buyers.
Entrance Hallway
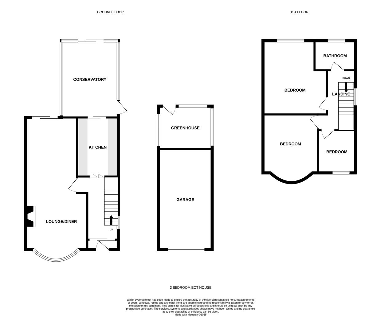
Lounge/Diner (8.81m into bay x 3.89m max (28'11 into bay x 12'9)
Kitchen (3.48m x 2.41m (11'5 x 7'11))
Conservatory (4.50m x 3.33m (14'9 x 10'11))
Landing
Loft Room (3.94m x 3.53m (12'11 x 11'7))
Bedroom One (4.57m x 3.78m (15'0 x 12'5))
Bedroom Two (4.24m into bay x 3.28m (13'11 into bay x 10'9))
Bedroom Three (2.54m x 2.36m (8'4 x 7'9))
Bathroom (2.41m x 1.55m (7'11 x 5'1))
Outside
Driveway
Garden
Gargage (5.92m x 3.15m (19'5 x 10'4))
Greenhouse
Viewing
Please contact us on 02393 785108 if you wish to arrange a viewing appointment for this property, or require further information.
Energy Performance Certificate
Click here to view the Energy Efficiency Rating and Environmental Impact Rating for this property.
Disclaimer
Nesbitt & Sons - PO16 endeavour to maintain accurate depictions of properties in Virtual Tours, Floor Plans and descriptions, however, these are intended only as a guide and purchasers must satisfy themselves by personal inspection.
Nestled in the desirable area of Cranleigh Road, Portchester, this charming end terrace house presents a wonderful opportunity for those seeking a family home with great potential. Boasting two spacious reception rooms, this property offers ample space for both relaxation and entertaining. With three well-proportioned bedrooms, it is ideal for families or those looking to create a comfortable living environment.The house features a single bathroom, catering to the needs of modern living. One of the standout attributes of this property is its rarely available corner plot location, providing a sense of privacy and space that is often hard to find. The generous parking area accommodates up to four vehicles, ensuring convenience for residents and guests alike.For those with a vision, there is significant potential to extend the property at both the side and rear, allowing for further enhancement to suit your personal needs. The superb enclosed south-facing garden is a true highlight, offering a perfect outdoor retreat for relaxation, gardening, or entertaining during the warmer months. Situated just a short walk away from the shoreline, this home not only provides a peaceful residential setting but also easy access to the beautiful coastal scenery. While the property is in need of some updating, it presents a fantastic opportunity to create a bespoke living space tailored to your tastes. This is a rare find in a sought-after location, making it a must-see for prospective buyers.
Entrance Hallway
Lounge/Diner (8.81m into bay x 3.89m max (28'11 into bay x 12'9)
Kitchen (3.48m x 2.41m (11'5 x 7'11))
Conservatory (4.50m x 3.33m (14'9 x 10'11))
Landing
Loft Room (3.94m x 3.53m (12'11 x 11'7))
Bedroom One (4.57m x 3.78m (15'0 x 12'5))
Bedroom Two (4.24m into bay x 3.28m (13'11 into bay x 10'9))
Bedroom Three (2.54m x 2.36m (8'4 x 7'9))
Bathroom (2.41m x 1.55m (7'11 x 5'1))
Outside
Driveway
Garden
Gargage (5.92m x 3.15m (19'5 x 10'4))
Greenhouse
Viewing
Please contact us on 02393 785108 if you wish to arrange a viewing appointment for this property, or require further information.
Energy Performance Certificate
Click here to view the Energy Efficiency Rating and Environmental Impact Rating for this property.
Disclaimer
Nesbitt & Sons - PO16 endeavour to maintain accurate depictions of properties in Virtual Tours, Floor Plans and descriptions, however, these are intended only as a guide and purchasers must satisfy themselves by personal inspection.
Features
- Charming End Of Terrace Family Home
- Imposing Corner Plot Offering Potential To Extend
- Wicor & Cams Hill School Catchment
- Short Walk Away From Shoreline
- Three Bedrooms
- Lounge/Diner
- Conservatory
- Loft Room
- Detached Garage With Driveways At Front And Rear
- Stunning Enclosed South Facing Garden With Workshop & Greenhouse
Share
Request aValuation
Thinking of selling your property? Click here to book a free property valuation.

