Details
Grindle Close, Fareham, PO16
OIEO £365,000
Description
Settled in the charming Grindle Close, Portchester, this beautiful end-terrace house is an ideal family home. Boasting four spacious bedrooms, including a stunning master bedroom with a dressing room and modern en-suite, this property offers ample space for both relaxation and entertainment. The stunning panoramic views of the Solent are truly breath taking, providing a picturesque backdrop to your daily life.The home features a well-appointed reception room leading to a conservatory overlooking the South facing garden, perfect for family gatherings or quiet evenings in. With two modern bathrooms and a downstairs WC, this will truly benefit the whole family. One of the standout features of this property is its location. Situated on the edge of a lovely park and fields, residents can enjoy the beauty of nature right at their doorstep. The enclosed south-facing garden is a fantastic retreat, complete with a raised sundeck, ideal for soaking up the sun or hosting summer barbecues.This property combines comfort, style, and a prime location, making it a perfect choice for families seeking a welcoming and vibrant community. Don't miss the opportunity to make this stunning house your new home.
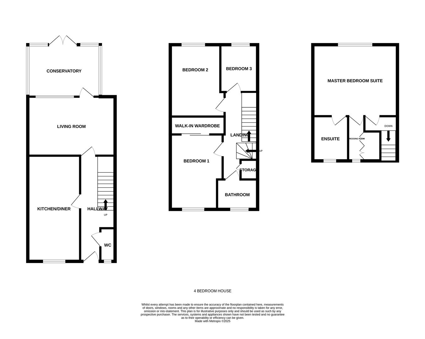
Entrance Hallway (5.66m x 1.80m (18'7 x 5'11))
Downstairs WC (1.80m x 0.81m (5'11 x 2'8))
Kitchen/Diner (5.66m x 2.84m (18'7 x 9'4))
Living Room (4.75m x 3.20m (15'7 x 10'6))
Conservatory (3.96m x 2.82m (13'0 x 9'3))
First Floor Landing
Bedroom Two (4.09m x 2.87m (13'5 x 9'5))
Bedroom Three (3.84m x 2.67m (12'7 x 8'9))
Bedroom Four (2.57m x 1.98m (8'5 x 6'6))
Bathroom (2.18m x 1.68m (7'2 x 5'6))
Second Floor
Master Bedroom (4.37m x 3.89m (14'4 x 12'9))
En-Suite (2.44m x 1.91m (8'0 x 6'3))
Dressing Room (2.44m x 1.73m (8'0 x 5'8))
Outside
Garden
Viewing
Please contact us on 02393 785108 if you wish to arrange a viewing appointment for this property, or require further information.
Energy Performance Certificate
Click here to view the Energy Efficiency Rating and Environmental Impact Rating for this property.
Disclaimer
Nesbitt & Sons - PO16 endeavour to maintain accurate depictions of properties in Virtual Tours, Floor Plans and descriptions, however, these are intended only as a guide and purchasers must satisfy themselves by personal inspection.
Settled in the charming Grindle Close, Portchester, this beautiful end-terrace house is an ideal family home. Boasting four spacious bedrooms, including a stunning master bedroom with a dressing room and modern en-suite, this property offers ample space for both relaxation and entertainment. The stunning panoramic views of the Solent are truly breath taking, providing a picturesque backdrop to your daily life.The home features a well-appointed reception room leading to a conservatory overlooking the South facing garden, perfect for family gatherings or quiet evenings in. With two modern bathrooms and a downstairs WC, this will truly benefit the whole family. One of the standout features of this property is its location. Situated on the edge of a lovely park and fields, residents can enjoy the beauty of nature right at their doorstep. The enclosed south-facing garden is a fantastic retreat, complete with a raised sundeck, ideal for soaking up the sun or hosting summer barbecues.This property combines comfort, style, and a prime location, making it a perfect choice for families seeking a welcoming and vibrant community. Don't miss the opportunity to make this stunning house your new home.
Entrance Hallway (5.66m x 1.80m (18'7 x 5'11))
Downstairs WC (1.80m x 0.81m (5'11 x 2'8))
Kitchen/Diner (5.66m x 2.84m (18'7 x 9'4))
Living Room (4.75m x 3.20m (15'7 x 10'6))
Conservatory (3.96m x 2.82m (13'0 x 9'3))
First Floor Landing
Bedroom Two (4.09m x 2.87m (13'5 x 9'5))
Bedroom Three (3.84m x 2.67m (12'7 x 8'9))
Bedroom Four (2.57m x 1.98m (8'5 x 6'6))
Bathroom (2.18m x 1.68m (7'2 x 5'6))
Second Floor
Master Bedroom (4.37m x 3.89m (14'4 x 12'9))
En-Suite (2.44m x 1.91m (8'0 x 6'3))
Dressing Room (2.44m x 1.73m (8'0 x 5'8))
Outside
Garden
Viewing
Please contact us on 02393 785108 if you wish to arrange a viewing appointment for this property, or require further information.
Energy Performance Certificate
Click here to view the Energy Efficiency Rating and Environmental Impact Rating for this property.
Disclaimer
Nesbitt & Sons - PO16 endeavour to maintain accurate depictions of properties in Virtual Tours, Floor Plans and descriptions, however, these are intended only as a guide and purchasers must satisfy themselves by personal inspection.
Features
- Beautiful Four Bedroom Family Home
- Master Bedroom Suite
- Stunning Solent Views
- Modern Fitted Kitchen / Diner
- En Suite to Master plus Family Bathroom
- Downstairs WC
- Enclosed South Facing Garden with Raised Sun Deck
- Excellent School Catchment Area
Share
Request aValuation
Thinking of selling your property? Click here to book a free property valuation.

