Details
Leith Avenue, Fareham, PO16
£425,000
(Sold Subject To Contract)
Description
Situated on the charming Leith Avenue in Portchester, this beautiful extended semi-detached family home offers a perfect blend of comfort and modern living. With three well-proportioned bedrooms, including a stunning master bedroom suite that boasts panoramic views of the harbour, this property is sure to impress.The heart of the home is the inviting living room, complete with a log burner that creates a warm and cosy atmosphere, perfect for family gatherings or quiet evenings in. This space overlooks the garden, allowing for a seamless connection with the outdoors. The modern fitted kitchen breakfast room is ideal for casual dining and entertaining, providing a stylish and functional area for culinary enthusiasts.In addition to the spacious interior, the property features two bathrooms, ensuring convenience for the whole family. The ample parking space for up to five vehicles and a huge detached quadruple garage is a rare find, making this home not only practical but also perfect for those with multiple cars or visiting guests.This semi-detached house is more than just a home; it is a sanctuary that offers both comfort and elegance in a desirable location. With its stunning views and modern amenities, this property is an excellent opportunity for families looking to settle in a vibrant community. Don't miss the chance to make this beautiful house your new home.
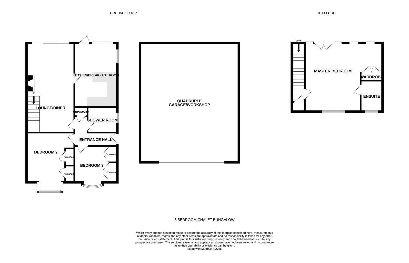
Entrance Hallway
Bedroom Three (3.25m x 2.74m (10'8 x 9'0))
Shower Room (2.26m x 1.78m (7'5 x 5'10))
Bedroom Two (4.47m into bay x 3.63m (14'8 into bay x 11'11))
Lounge/Diner (6.78m x 3.61m (22'3 x 11'10))
Kitchen/Breakfast Room (4.85m x 3.23m (15'11 x 10'7))
Landing
Master Bedroom (5.99m max x 5.18m (19'8 max x 17'0))
En-Suite (2.34m x 1.65m (7'8 x 5'5))
Outside
Driveway
Garden
Quadruple Detached Garage/Workshop (9.07m x 7.47m (29'9 x 24'6))
Viewing
Please contact us on 02393 785108 if you wish to arrange a viewing appointment for this property, or require further information.
Energy Performance Certificate
Click here to view the Energy Efficiency Rating and Environmental Impact Rating for this property.
Disclaimer
Nesbitt & Sons - PO16 endeavour to maintain accurate depictions of properties in Virtual Tours, Floor Plans and descriptions, however, these are intended only as a guide and purchasers must satisfy themselves by personal inspection.
Situated on the charming Leith Avenue in Portchester, this beautiful extended semi-detached family home offers a perfect blend of comfort and modern living. With three well-proportioned bedrooms, including a stunning master bedroom suite that boasts panoramic views of the harbour, this property is sure to impress.The heart of the home is the inviting living room, complete with a log burner that creates a warm and cosy atmosphere, perfect for family gatherings or quiet evenings in. This space overlooks the garden, allowing for a seamless connection with the outdoors. The modern fitted kitchen breakfast room is ideal for casual dining and entertaining, providing a stylish and functional area for culinary enthusiasts.In addition to the spacious interior, the property features two bathrooms, ensuring convenience for the whole family. The ample parking space for up to five vehicles and a huge detached quadruple garage is a rare find, making this home not only practical but also perfect for those with multiple cars or visiting guests.This semi-detached house is more than just a home; it is a sanctuary that offers both comfort and elegance in a desirable location. With its stunning views and modern amenities, this property is an excellent opportunity for families looking to settle in a vibrant community. Don't miss the chance to make this beautiful house your new home.
Entrance Hallway
Bedroom Three (3.25m x 2.74m (10'8 x 9'0))
Shower Room (2.26m x 1.78m (7'5 x 5'10))
Bedroom Two (4.47m into bay x 3.63m (14'8 into bay x 11'11))
Lounge/Diner (6.78m x 3.61m (22'3 x 11'10))
Kitchen/Breakfast Room (4.85m x 3.23m (15'11 x 10'7))
Landing
Master Bedroom (5.99m max x 5.18m (19'8 max x 17'0))
En-Suite (2.34m x 1.65m (7'8 x 5'5))
Outside
Driveway
Garden
Quadruple Detached Garage/Workshop (9.07m x 7.47m (29'9 x 24'6))
Viewing
Please contact us on 02393 785108 if you wish to arrange a viewing appointment for this property, or require further information.
Energy Performance Certificate
Click here to view the Energy Efficiency Rating and Environmental Impact Rating for this property.
Disclaimer
Nesbitt & Sons - PO16 endeavour to maintain accurate depictions of properties in Virtual Tours, Floor Plans and descriptions, however, these are intended only as a guide and purchasers must satisfy themselves by personal inspection.
Features
- STUNNING EXTENDED SEMI DETACHED CHALET BUNGALOW
- OUTSTANDING HARBOUR VIEWS
- DRIVEWAY & HUGE DETACHED QUADRUPLE GARAGE AT REAR
- LOVELY ENCLOSED SOUTH FACING GARDEN
- THREE BEDROOMS
- LOUNGE/DINER WITH LOG BURNER
- MODERN FITTED KITCHEN/BREAKFAST ROOM
- ENCLOSED SOUTH FACING GARDEN
- MUCH REQUESTED HILLSLOPE LOCATION
- NO FORWARD CHAIN
Share
Request aValuation
Thinking of selling your property? Click here to book a free property valuation.

