Details
Olive Crescent, Fareham, PO16
OIRO £350,000
(Sold Subject To Contract)
Description
Nestled in the charming Olive Crescent, Portchester, this beautifully extended semi-detached family home offers a delightful blend of modern living and spacious comfort. As you step inside, you will be greeted by an inviting reception room, perfect for both relaxation and entertaining guests. The heart of the home is undoubtedly the modern open-plan kitchen and dining area, which boasts double doors that seamlessly connect to the garden, allowing for an abundance of natural light and a wonderful flow for family gatherings.This property features three well-proportioned bedrooms, providing ample space for family members or guests. The modern bathroom is conveniently located to serve the needs of the household. One of the standout features of this home is the outdoor games room and bar, which was originally the garage. This versatile space can be transformed to suit your lifestyle, whether it be for leisure, hobbies, or entertaining friends.The large driveway offers plenty of off-road parking, ensuring convenience for you and your visitors. The overall feel of this home is deceptively spacious, making it an ideal choice for families seeking both comfort and functionality. With its modern amenities and inviting atmosphere, this property is a must-see for anyone looking to settle in the lovely area of Portchester. Don't miss the opportunity to make this wonderful house your new home.
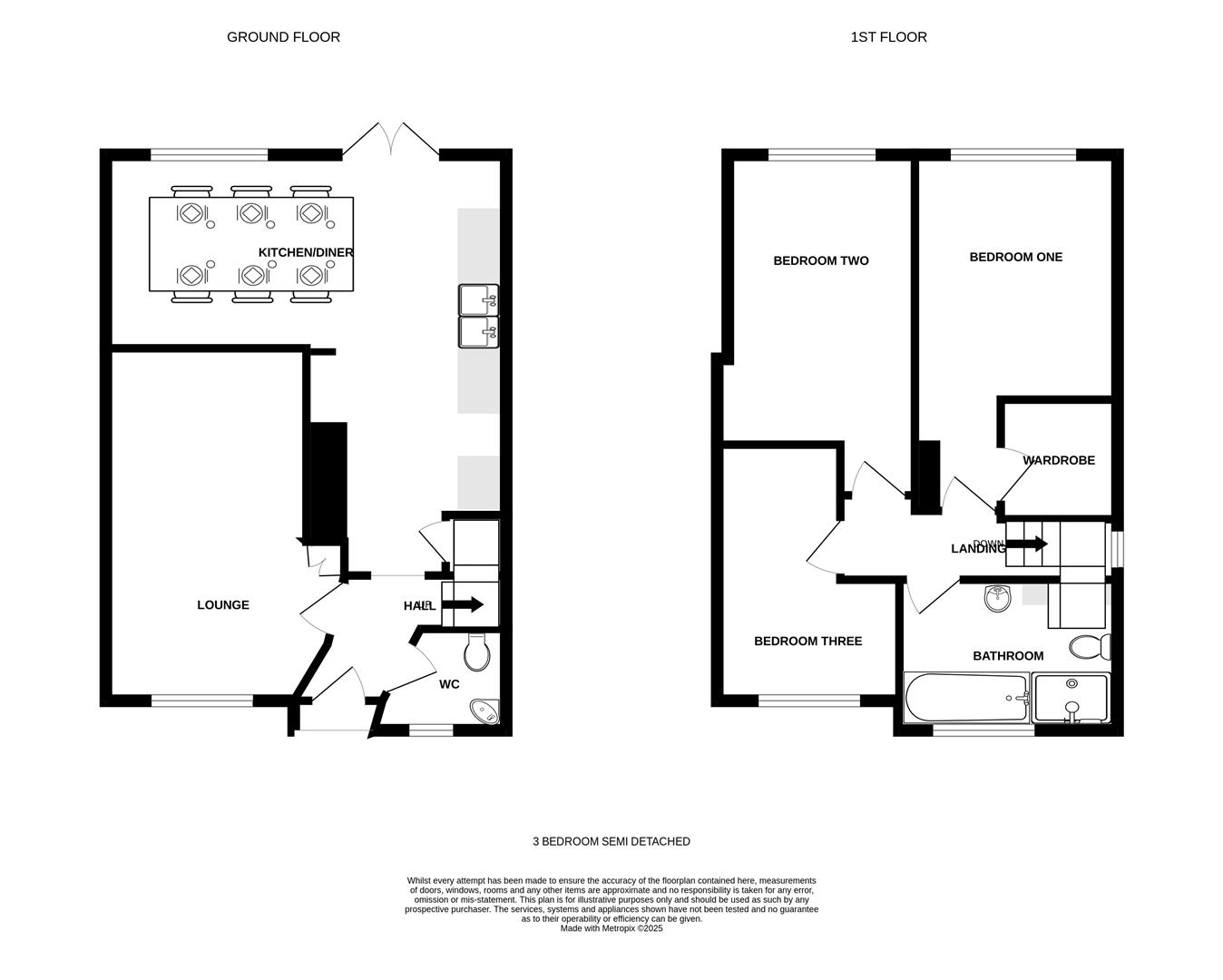
Entrance Hallway
Living Room (5.00m x 2.87m (16'5 x 9'5))
Kitchen/Diner (5.99m max x 5.74m max (19'8 max x 18'10 max))
Downstairs WC
Landing
Bedroom One (5.21m x 2.90m (17'1 x 9'6))
Bedroom Two (4.17m x 2.82m (13'8 x 9'3))
Bedroom Three (3.63m x 2.69m (11'11 x 8'10))
Bathroom (3.10m x 2.29m (10'2 x 7'6))
Outside
Driveway
Garden
Games Room/Bar (Originally Garage) (7.14m x 2.90m (23'5 x 9'6))
Viewing
Please contact us on 02393 785108 if you wish to arrange a viewing appointment for this property, or require further information.
Energy Performance Certificate
Click here to view the Energy Efficiency Rating and Environmental Impact Rating for this property.
Disclaimer
Nesbitt & Sons - PO16 endeavour to maintain accurate depictions of properties in Virtual Tours, Floor Plans and descriptions, however, these are intended only as a guide and purchasers must satisfy themselves by personal inspection.
Nestled in the charming Olive Crescent, Portchester, this beautifully extended semi-detached family home offers a delightful blend of modern living and spacious comfort. As you step inside, you will be greeted by an inviting reception room, perfect for both relaxation and entertaining guests. The heart of the home is undoubtedly the modern open-plan kitchen and dining area, which boasts double doors that seamlessly connect to the garden, allowing for an abundance of natural light and a wonderful flow for family gatherings.This property features three well-proportioned bedrooms, providing ample space for family members or guests. The modern bathroom is conveniently located to serve the needs of the household. One of the standout features of this home is the outdoor games room and bar, which was originally the garage. This versatile space can be transformed to suit your lifestyle, whether it be for leisure, hobbies, or entertaining friends.The large driveway offers plenty of off-road parking, ensuring convenience for you and your visitors. The overall feel of this home is deceptively spacious, making it an ideal choice for families seeking both comfort and functionality. With its modern amenities and inviting atmosphere, this property is a must-see for anyone looking to settle in the lovely area of Portchester. Don't miss the opportunity to make this wonderful house your new home.
Entrance Hallway
Living Room (5.00m x 2.87m (16'5 x 9'5))
Kitchen/Diner (5.99m max x 5.74m max (19'8 max x 18'10 max))
Downstairs WC
Landing
Bedroom One (5.21m x 2.90m (17'1 x 9'6))
Bedroom Two (4.17m x 2.82m (13'8 x 9'3))
Bedroom Three (3.63m x 2.69m (11'11 x 8'10))
Bathroom (3.10m x 2.29m (10'2 x 7'6))
Outside
Driveway
Garden
Games Room/Bar (Originally Garage) (7.14m x 2.90m (23'5 x 9'6))
Viewing
Please contact us on 02393 785108 if you wish to arrange a viewing appointment for this property, or require further information.
Energy Performance Certificate
Click here to view the Energy Efficiency Rating and Environmental Impact Rating for this property.
Disclaimer
Nesbitt & Sons - PO16 endeavour to maintain accurate depictions of properties in Virtual Tours, Floor Plans and descriptions, however, these are intended only as a guide and purchasers must satisfy themselves by personal inspection.
Features
- Beautiful Extended Semi Detached Family Home
- Much Requested Cul De Sac Location
- Modern Open Plan Kitchen/Diner
- Downstairs WC
- Three Double Bedrooms
- Modern Four Piece Bathroom Suite
- Large Driveway At The Front
- Enclosed Rear Garden
- Outdoor Games Room/Bar ( Originally The Garage )
- Close To Shoreline & Local Amenities
Share
Request aValuation
Thinking of selling your property? Click here to book a free property valuation.