Details
Privett Road, Fareham, PO15
Guide price £250,000
(Sold Subject To Contract)
Description
*** Guide Price - £250,000 to £260,000 ***Situated on Privett Road in Fareham, this charming end-terrace house presents an excellent opportunity for first-time buyers. With three well-proportioned bedrooms and a comfortable reception room, this property offers ample space for both relaxation and entertaining. The house features an open plan kitchen/diner with access onto garden, ensuring convenience for all residents.One of the standout features of this home is the good-sized enclosed south-facing garden, perfect for enjoying sunny days and outdoor activities. The garden provides a private retreat, ideal for gardening enthusiasts or those who simply wish to unwind in a tranquil setting. Additionally, the property includes off street parking and a garage, a valuable asset in this desirable area.While the house is in need of some modernisation, this presents a wonderful opportunity for buyers to put their personal touch on the space and create their dream home. Furthermore, there is potential to extend at the rear, subject to planning permission, allowing for future growth and enhancement of the property.Conveniently located close to local schools and amenities, this home is perfectly positioned for families and individuals alike. With its blend of potential and practicality, this property on Privett Road is not to be missed. Whether you are looking to invest in your first home or seeking a project to make your own, this house offers a promising foundation for your future.
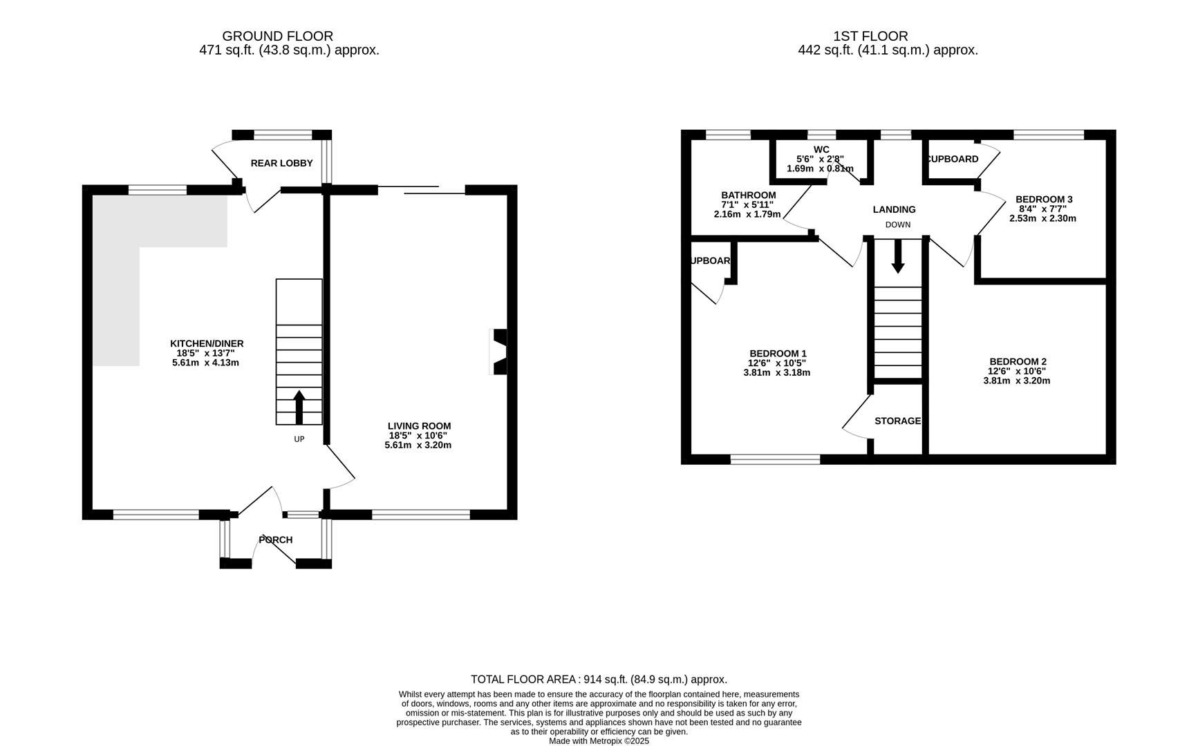
Porch
Kitchen/Diner (5.61m x 4.14m (18'5 x 13'7))
Rear Lobby
Living Room (5.61m x 3.20m (18'5 x 10'6))
Landing
Bedroom One (3.81m x 3.18m (12'6 x 10'5))
Bedroom Two (3.20m x 3.07m (10'6 x 10'1))
Bedroom Three (2.44m x 2.31m (8'0 x 7'7))
Bathroom
WC
Outside
Front Garden
Rear Garden
Garage
Viewing
Please contact us on 02393 785108 if you wish to arrange a viewing appointment for this property, or require further information.
Disclaimer
Nesbitt & Sons - PO16 endeavour to maintain accurate depictions of properties in Virtual Tours, Floor Plans and descriptions, however, these are intended only as a guide and purchasers must satisfy themselves by personal inspection.
*** Guide Price - £250,000 to £260,000 ***Situated on Privett Road in Fareham, this charming end-terrace house presents an excellent opportunity for first-time buyers. With three well-proportioned bedrooms and a comfortable reception room, this property offers ample space for both relaxation and entertaining. The house features an open plan kitchen/diner with access onto garden, ensuring convenience for all residents.One of the standout features of this home is the good-sized enclosed south-facing garden, perfect for enjoying sunny days and outdoor activities. The garden provides a private retreat, ideal for gardening enthusiasts or those who simply wish to unwind in a tranquil setting. Additionally, the property includes off street parking and a garage, a valuable asset in this desirable area.While the house is in need of some modernisation, this presents a wonderful opportunity for buyers to put their personal touch on the space and create their dream home. Furthermore, there is potential to extend at the rear, subject to planning permission, allowing for future growth and enhancement of the property.Conveniently located close to local schools and amenities, this home is perfectly positioned for families and individuals alike. With its blend of potential and practicality, this property on Privett Road is not to be missed. Whether you are looking to invest in your first home or seeking a project to make your own, this house offers a promising foundation for your future.
Porch
Kitchen/Diner (5.61m x 4.14m (18'5 x 13'7))
Rear Lobby
Living Room (5.61m x 3.20m (18'5 x 10'6))
Landing
Bedroom One (3.81m x 3.18m (12'6 x 10'5))
Bedroom Two (3.20m x 3.07m (10'6 x 10'1))
Bedroom Three (2.44m x 2.31m (8'0 x 7'7))
Bathroom
WC
Outside
Front Garden
Rear Garden
Garage
Viewing
Please contact us on 02393 785108 if you wish to arrange a viewing appointment for this property, or require further information.
Disclaimer
Nesbitt & Sons - PO16 endeavour to maintain accurate depictions of properties in Virtual Tours, Floor Plans and descriptions, however, these are intended only as a guide and purchasers must satisfy themselves by personal inspection.
Features
- End Of Terrace Family Home
- Popular Location Close To Local Schools & Amenities
- Three Bedrooms
- Kitchen/Diner
- Living Room With Log Burner
- Good Size Enclosed South Facing Garden
- Off Street Parking & Garage
- Potential To Extend At Rear (STPP)
- In Need Of Some Modernisation
- No Forward Chain
Share
Request aValuation
Thinking of selling your property? Click here to book a free property valuation.

