Details
Roman Grove, Fareham, PO16
OIEO £400,000
Description
Situated in the charming area of Roman Grove, Portchester, this stunning extended semi-detached family home offers a perfect blend of modern comfort and traditional appeal. With three well-proportioned bedrooms and a newly fitted bathroom suite featuring underfloor heating, this property is designed to cater to the needs of a growing family.As you enter, you are welcomed into a beautiful living room that boasts a log burner, creating a warm and inviting atmosphere. The bi-fold doors seamlessly connect the indoor space to the garden, allowing for an abundance of natural light and providing an ideal setting for entertaining or simply enjoying the outdoors.The property also features a separate dining room and a modern fitted kitchen, offering versatility for family gatherings or quiet evenings at home. With parking available for up to two vehicles and a garage, convenience is assured for both residents and guests.Situated just a short walk away from the historic castle and the picturesque shoreline, this home is perfectly positioned for those who appreciate the beauty of nature and the rich history of the area. Whether you are looking to explore the local attractions or simply enjoy the tranquillity of your surroundings, this property is an excellent choice.In summary, this semi-detached family home in Portchester is a delightful opportunity for anyone seeking a comfortable and stylish living space in a desirable location. Don't miss the chance to make this beautiful house your new home.
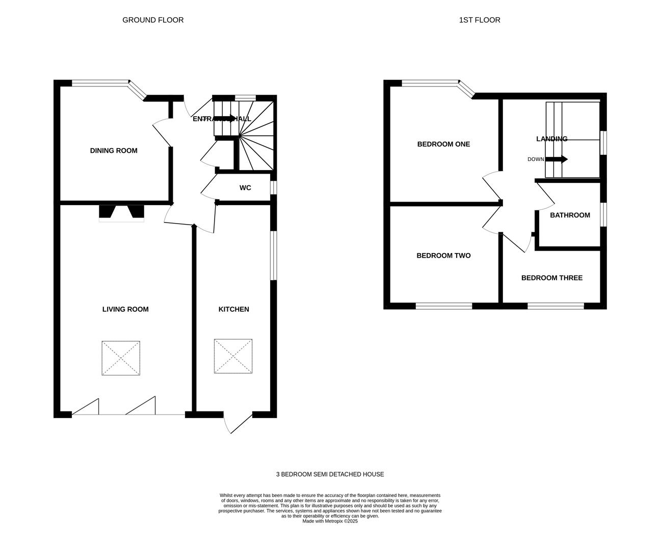
Entrance Hallway
Dining Room (3.18m x 3.05m (10'5 x 10'0))
Downstairs WC
Living Room (5.61m x 3.71m (18'5 x 12'2))
Kitchen (5.61m x 2.03m (18'5 x 6'8))
Landing
Bedroom One (3.43m x 3.18m (11'3 x 10'5))
Bedroom Two (3.20m x 3.15m (10'6 x 10'4))
Bedroom Three (2.64m x 2.11m (8'8 x 6'11))
Bathroom
Outside
Driveway
Garage
Garden
Viewing
Please contact us on 02393 785108 if you wish to arrange a viewing appointment for this property, or require further information.
Energy Performance Certificate
Click here to view the Energy Efficiency Rating and Environmental Impact Rating for this property.
Disclaimer
Nesbitt & Sons - PO16 endeavour to maintain accurate depictions of properties in Virtual Tours, Floor Plans and descriptions, however, these are intended only as a guide and purchasers must satisfy themselves by personal inspection.
Situated in the charming area of Roman Grove, Portchester, this stunning extended semi-detached family home offers a perfect blend of modern comfort and traditional appeal. With three well-proportioned bedrooms and a newly fitted bathroom suite featuring underfloor heating, this property is designed to cater to the needs of a growing family.As you enter, you are welcomed into a beautiful living room that boasts a log burner, creating a warm and inviting atmosphere. The bi-fold doors seamlessly connect the indoor space to the garden, allowing for an abundance of natural light and providing an ideal setting for entertaining or simply enjoying the outdoors.The property also features a separate dining room and a modern fitted kitchen, offering versatility for family gatherings or quiet evenings at home. With parking available for up to two vehicles and a garage, convenience is assured for both residents and guests.Situated just a short walk away from the historic castle and the picturesque shoreline, this home is perfectly positioned for those who appreciate the beauty of nature and the rich history of the area. Whether you are looking to explore the local attractions or simply enjoy the tranquillity of your surroundings, this property is an excellent choice.In summary, this semi-detached family home in Portchester is a delightful opportunity for anyone seeking a comfortable and stylish living space in a desirable location. Don't miss the chance to make this beautiful house your new home.
Entrance Hallway
Dining Room (3.18m x 3.05m (10'5 x 10'0))
Downstairs WC
Living Room (5.61m x 3.71m (18'5 x 12'2))
Kitchen (5.61m x 2.03m (18'5 x 6'8))
Landing
Bedroom One (3.43m x 3.18m (11'3 x 10'5))
Bedroom Two (3.20m x 3.15m (10'6 x 10'4))
Bedroom Three (2.64m x 2.11m (8'8 x 6'11))
Bathroom
Outside
Driveway
Garage
Garden
Viewing
Please contact us on 02393 785108 if you wish to arrange a viewing appointment for this property, or require further information.
Energy Performance Certificate
Click here to view the Energy Efficiency Rating and Environmental Impact Rating for this property.
Disclaimer
Nesbitt & Sons - PO16 endeavour to maintain accurate depictions of properties in Virtual Tours, Floor Plans and descriptions, however, these are intended only as a guide and purchasers must satisfy themselves by personal inspection.
Features
- Stunning Extended Semi Detached Family Home
- Short Walk Away From Historic Castle & Shoreline
- Extensively Modernised By Current Owners
- Living Room With Bi Fold Doors Opening Onto Decking
- Newly Fitted Bathroom Suite With Underfloor Heating
- Modern Fitted Kitchen
- Three Bedrooms
- Downstairs WC
- Large Driveway & Garage
- Enclosed South Facing Garden
Share
Request aValuation
Thinking of selling your property? Click here to book a free property valuation.

