Details
White Hart Lane, Fareham, PO16
OIRO £335,000
(Sold Subject To Contract)
Description
Situated in the sought-after area of White Hart Lane, Portchester, this charming mid-terrace house offers a delightful blend of comfort and convenience. With a spacious open plan living / dining room, this property is perfect for both relaxation and entertaining. The three well-proportioned bedrooms provide ample space for family living or guests, while the modern bathroom ensures a refreshing retreat.The location is particularly appealing, being close to local schools and a variety of amenities, making it an ideal choice for families. Additionally, the property is just a short stroll away from the picturesque shoreline, perfect for leisurely walks or enjoying the coastal scenery.This home is well presented throughout, showcasing a warm and inviting atmosphere that is ready for you to move in and make your own. A notable feature of this property is the double garage with an electric door located at the rear, providing secure parking and extra storage space.In summary, this mid-terrace house in Portchester is a wonderful opportunity for those seeking a well-located and well-maintained home. With its appealing features and proximity to essential services, it is sure to attract interest from a variety of buyers. Don’t miss the chance to view this lovely property.
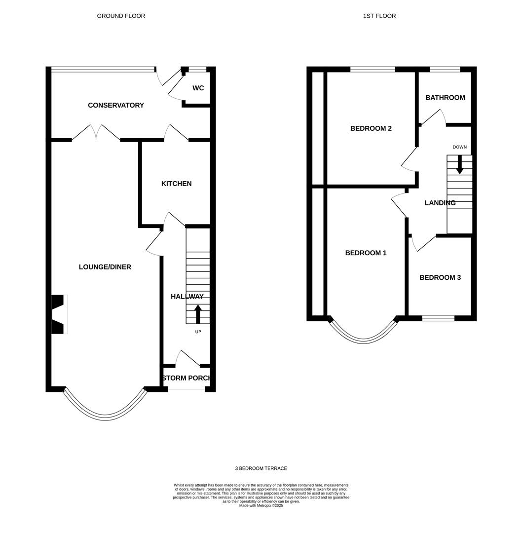
Entrance Hallway
Lounge (4.65m into bay x 3.61m (15'3 into bay x 11'10))
Dining Room (3.63m x 2.84m (11'11 x 9'4))
Kitchen (2.62m x 2.24m (8'7 x 7'4))
Conservatory (4.34m x 2.26m (14'3 x 7'5))
Downstairs WC
Landing
Bedroom One (4.70m into bay x 3.02m (15'5 into bay x 9'11))
Bedroom Two (3.63m x 3.33m (11'11 x 10'11))
Bedroom Three (2.54m x 2.08m (8'4 x 6'10))
Bathroom
Outside
Garden
Double Garage (5.38m x 5.11m (17'8 x 16'9))
Viewing
Please contact us on 02393 785108 if you wish to arrange a viewing appointment for this property, or require further information.
Energy Performance Certificate
Click here to view the Energy Efficiency Rating and Environmental Impact Rating for this property.
Disclaimer
Nesbitt & Sons - PO16 endeavour to maintain accurate depictions of properties in Virtual Tours, Floor Plans and descriptions, however, these are intended only as a guide and purchasers must satisfy themselves by personal inspection.
Situated in the sought-after area of White Hart Lane, Portchester, this charming mid-terrace house offers a delightful blend of comfort and convenience. With a spacious open plan living / dining room, this property is perfect for both relaxation and entertaining. The three well-proportioned bedrooms provide ample space for family living or guests, while the modern bathroom ensures a refreshing retreat.The location is particularly appealing, being close to local schools and a variety of amenities, making it an ideal choice for families. Additionally, the property is just a short stroll away from the picturesque shoreline, perfect for leisurely walks or enjoying the coastal scenery.This home is well presented throughout, showcasing a warm and inviting atmosphere that is ready for you to move in and make your own. A notable feature of this property is the double garage with an electric door located at the rear, providing secure parking and extra storage space.In summary, this mid-terrace house in Portchester is a wonderful opportunity for those seeking a well-located and well-maintained home. With its appealing features and proximity to essential services, it is sure to attract interest from a variety of buyers. Don’t miss the chance to view this lovely property.
Entrance Hallway
Lounge (4.65m into bay x 3.61m (15'3 into bay x 11'10))
Dining Room (3.63m x 2.84m (11'11 x 9'4))
Kitchen (2.62m x 2.24m (8'7 x 7'4))
Conservatory (4.34m x 2.26m (14'3 x 7'5))
Downstairs WC
Landing
Bedroom One (4.70m into bay x 3.02m (15'5 into bay x 9'11))
Bedroom Two (3.63m x 3.33m (11'11 x 10'11))
Bedroom Three (2.54m x 2.08m (8'4 x 6'10))
Bathroom
Outside
Garden
Double Garage (5.38m x 5.11m (17'8 x 16'9))
Viewing
Please contact us on 02393 785108 if you wish to arrange a viewing appointment for this property, or require further information.
Energy Performance Certificate
Click here to view the Energy Efficiency Rating and Environmental Impact Rating for this property.
Disclaimer
Nesbitt & Sons - PO16 endeavour to maintain accurate depictions of properties in Virtual Tours, Floor Plans and descriptions, however, these are intended only as a guide and purchasers must satisfy themselves by personal inspection.
Features
- Lovely Mid Terrace Home
- Much Requested Location
- Three Bedrooms
- Open Plan Lounge/Diner
- Modern Fitted Kitchen
- Conservatory
- Modern Bathroom Suite
- Good Size Enclosed Rear Garden
- Double Garage With Electric Roller Door
- No Forward Chain
Share
Request aValuation
Thinking of selling your property? Click here to book a free property valuation.

