Details
Harting Gardens, Fareham, PO16
Guide price £265,000
(Sold Subject To Contract)
Description
*** Guide Price - £265,000 to £275,000 ***Nestled in the highly sought-after Harting Gardens, Portchester, this charming mid-terrace family home presents an excellent opportunity for first-time buyers. With two well-proportioned bedrooms and a comfortable reception room, the property offers a warm and inviting atmosphere, perfect for both relaxation and entertaining.The home features a well-appointed bathroom, ensuring convenience for all residents. The layout is practical and functional, making it easy to adapt to your lifestyle. Additionally, the property benefits from parking for one vehicle, providing ease of access and peace of mind.One of the standout features of this residence is its proximity to local schools, making it an ideal choice for families. The surrounding area is known for its community spirit and accessibility to essential amenities, enhancing the overall living experience.For those in need of extra storage or workspace, a garage in a nearby block adds further appeal to this delightful home. Whether you are looking to start your journey on the property ladder or seeking a comfortable family abode, this mid-terrace house in Portchester is a fantastic option that should not be missed. Embrace the opportunity to make this lovely property your own.
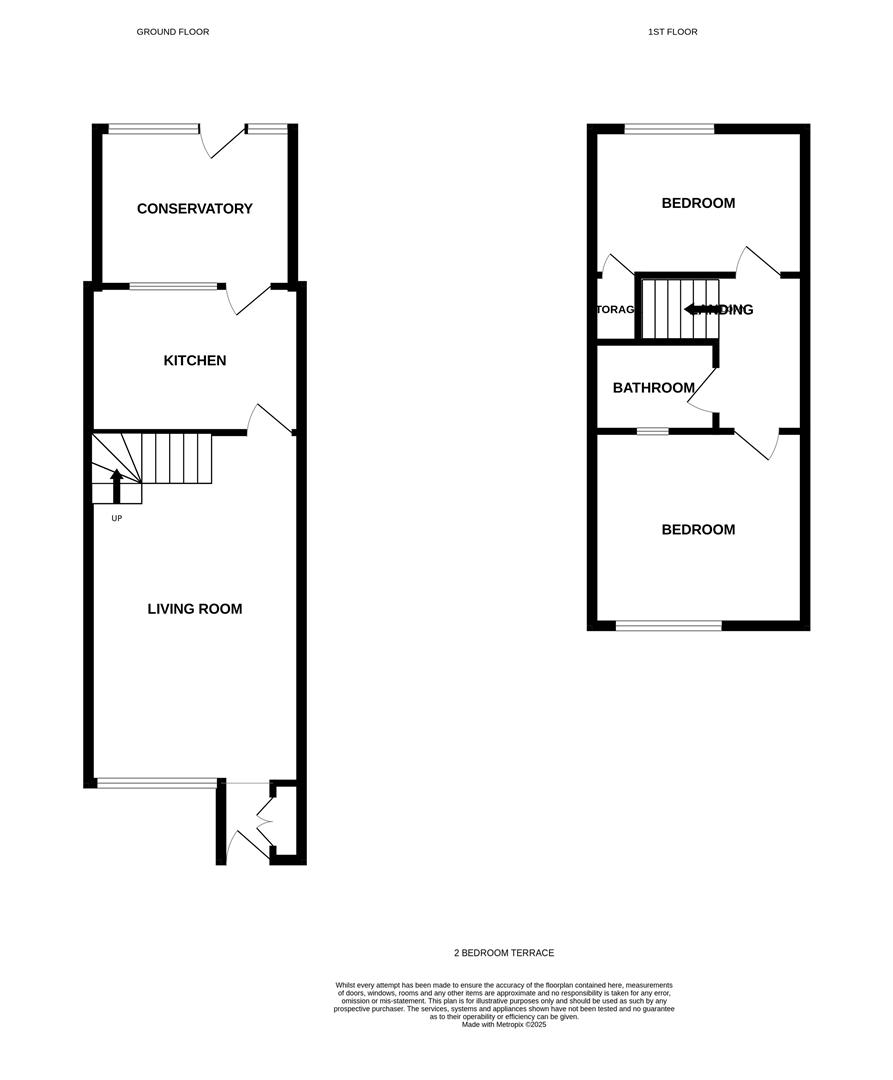
Entrance Hall
Living Room (5.97m x 3.63m (19'7 x 11'11))
Kitchen (3.63m x 2.49m (11'11 x 8'2))
Conservatory (3.33m x 2.69m (10'11 x 8'10))
Landing
Bedroom One (3.63m x 3.30m (11'11 x 10'10))
Bedroom Two (3.63m x 2.49m (11'11 x 8'2))
Bathroom (2.11m x 1.78m (6'11 x 5'10))
Outside
Garden
Garage In Block
Viewing
Please contact us on 02393 785108 if you wish to arrange a viewing appointment for this property, or require further information.
Energy Performance Certificate
Click here to view the Energy Efficiency Rating and Environmental Impact Rating for this property.
Disclaimer
Nesbitt & Sons - PO16 endeavour to maintain accurate depictions of properties in Virtual Tours, Floor Plans and descriptions, however, these are intended only as a guide and purchasers must satisfy themselves by personal inspection.
*** Guide Price - £265,000 to £275,000 ***Nestled in the highly sought-after Harting Gardens, Portchester, this charming mid-terrace family home presents an excellent opportunity for first-time buyers. With two well-proportioned bedrooms and a comfortable reception room, the property offers a warm and inviting atmosphere, perfect for both relaxation and entertaining.The home features a well-appointed bathroom, ensuring convenience for all residents. The layout is practical and functional, making it easy to adapt to your lifestyle. Additionally, the property benefits from parking for one vehicle, providing ease of access and peace of mind.One of the standout features of this residence is its proximity to local schools, making it an ideal choice for families. The surrounding area is known for its community spirit and accessibility to essential amenities, enhancing the overall living experience.For those in need of extra storage or workspace, a garage in a nearby block adds further appeal to this delightful home. Whether you are looking to start your journey on the property ladder or seeking a comfortable family abode, this mid-terrace house in Portchester is a fantastic option that should not be missed. Embrace the opportunity to make this lovely property your own.
Entrance Hall
Living Room (5.97m x 3.63m (19'7 x 11'11))
Kitchen (3.63m x 2.49m (11'11 x 8'2))
Conservatory (3.33m x 2.69m (10'11 x 8'10))
Landing
Bedroom One (3.63m x 3.30m (11'11 x 10'10))
Bedroom Two (3.63m x 2.49m (11'11 x 8'2))
Bathroom (2.11m x 1.78m (6'11 x 5'10))
Outside
Garden
Garage In Block
Viewing
Please contact us on 02393 785108 if you wish to arrange a viewing appointment for this property, or require further information.
Energy Performance Certificate
Click here to view the Energy Efficiency Rating and Environmental Impact Rating for this property.
Disclaimer
Nesbitt & Sons - PO16 endeavour to maintain accurate depictions of properties in Virtual Tours, Floor Plans and descriptions, however, these are intended only as a guide and purchasers must satisfy themselves by personal inspection.
Features
- LOVELY MID TERRACE FAMILY HOME
- MUCH REQUESTED CUL DE SAC LOCATION
- TWO DOUBLE BEDROOMS
- MODERN FITTED KITCHEN
- CONSERVATORY
- FAMILY BATHROOM
- CLOSE TO LOCAL SHOPS & SCHOOLS
- ENCLOSED REAR GARDEN
- GARAGE IN A BLOCK
- IDEAL FIRST TIME BUY
Share
Request aValuation
Thinking of selling your property? Click here to book a free property valuation.

