Details
Corhampton Crescent, Havant, PO9
£269,950
Description
Situated in the picturesque Corhampton Crescent in Havant, this charming semi-detached family home offers a delightful blend of comfort and modern living. With three well-proportioned bedrooms, this property is perfect for families seeking a welcoming space to call home.As you enter, you are greeted by a spacious reception room that provides an inviting atmosphere for relaxation and entertaining. The heart of the home is undoubtedly the modern fitted kitchen and dining area, which overlooks the serene garden, allowing for a seamless connection between indoor and outdoor living. This space is ideal for family meals and gatherings, making it a wonderful hub for creating lasting memories.The property boasts a newly fitted family bathroom suite, ensuring that all your needs are met with contemporary style and convenience. The thoughtful design and layout of this home make it both functional and appealing, catering to the demands of modern family life.Situated close to the tranquil Hermitage Stream, residents can enjoy the beauty of nature right on their doorstep, perfect for leisurely walks or outdoor activities. This location not only offers a peaceful environment but also provides easy access to local amenities and transport links, making it an ideal choice for those looking to balance suburban living with urban convenience.In summary, this semi-detached house on Corhampton Crescent is a wonderful opportunity for families seeking a comfortable and stylish home in a desirable area. With its modern features and charming surroundings, it is sure to attract those looking for a place to settle down and thrive.
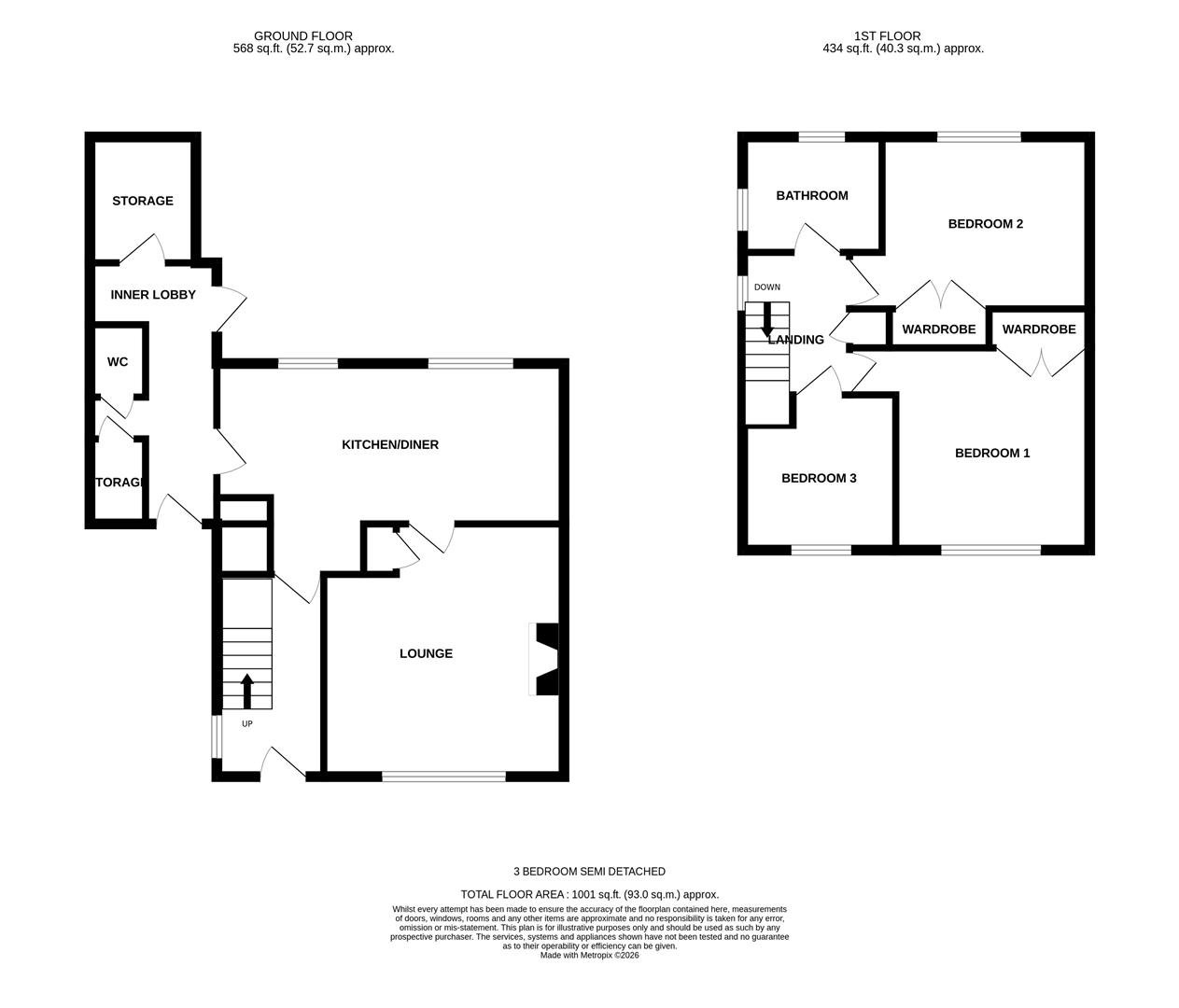
Entrance Hallway
Kitchen/Diner (5.82m max x 3.53m max (19'1 max x 11'7 max))
Lounge (4.24m x 4.01m (13'11 x 13'2))
Outer Lobby
Downstairs WC
Landing
Bedroom One (3.38m x 3.28m (11'1 x 10'9))
Bedroom Two (3.53m x 2.97m (11'7 x 9'9))
Bedroom Three (2.59m x 2.51m (8'6 x 8'3))
Bathroom (2.34m x 1.96m (7'8 x 6'5))
Outside
Well tended garden to front. To the rear there is a lovely, large and enclosed, mainly lawned garden with mature borders
Front Garden
Rear Garden
AGENTS NOTE
Please be aware that this is a non standard construction Orlit built House. Please check with your lender/mortgage broker that your chosen mortgage provider will lend on this type of construction prior to making and viewings.
Viewing
Please contact us on 02393 785108 if you wish to arrange a viewing appointment for this property, or require further information.
Disclaimer
Nesbitt & Sons - PO16 endeavour to maintain accurate depictions of properties in Virtual Tours, Floor Plans and descriptions, however, these are intended only as a guide and purchasers must satisfy themselves by personal inspection.
Situated in the picturesque Corhampton Crescent in Havant, this charming semi-detached family home offers a delightful blend of comfort and modern living. With three well-proportioned bedrooms, this property is perfect for families seeking a welcoming space to call home.As you enter, you are greeted by a spacious reception room that provides an inviting atmosphere for relaxation and entertaining. The heart of the home is undoubtedly the modern fitted kitchen and dining area, which overlooks the serene garden, allowing for a seamless connection between indoor and outdoor living. This space is ideal for family meals and gatherings, making it a wonderful hub for creating lasting memories.The property boasts a newly fitted family bathroom suite, ensuring that all your needs are met with contemporary style and convenience. The thoughtful design and layout of this home make it both functional and appealing, catering to the demands of modern family life.Situated close to the tranquil Hermitage Stream, residents can enjoy the beauty of nature right on their doorstep, perfect for leisurely walks or outdoor activities. This location not only offers a peaceful environment but also provides easy access to local amenities and transport links, making it an ideal choice for those looking to balance suburban living with urban convenience.In summary, this semi-detached house on Corhampton Crescent is a wonderful opportunity for families seeking a comfortable and stylish home in a desirable area. With its modern features and charming surroundings, it is sure to attract those looking for a place to settle down and thrive.
Entrance Hallway
Kitchen/Diner (5.82m max x 3.53m max (19'1 max x 11'7 max))
Lounge (4.24m x 4.01m (13'11 x 13'2))
Outer Lobby
Downstairs WC
Landing
Bedroom One (3.38m x 3.28m (11'1 x 10'9))
Bedroom Two (3.53m x 2.97m (11'7 x 9'9))
Bedroom Three (2.59m x 2.51m (8'6 x 8'3))
Bathroom (2.34m x 1.96m (7'8 x 6'5))
Outside
Well tended garden to front. To the rear there is a lovely, large and enclosed, mainly lawned garden with mature borders
Front Garden
Rear Garden
AGENTS NOTE
Please be aware that this is a non standard construction Orlit built House. Please check with your lender/mortgage broker that your chosen mortgage provider will lend on this type of construction prior to making and viewings.
Viewing
Please contact us on 02393 785108 if you wish to arrange a viewing appointment for this property, or require further information.
Disclaimer
Nesbitt & Sons - PO16 endeavour to maintain accurate depictions of properties in Virtual Tours, Floor Plans and descriptions, however, these are intended only as a guide and purchasers must satisfy themselves by personal inspection.
Features
- Charming Semi Detached Family Home
- Much Requested Location Close To Hermitage Stream
- Three Bedrooms
- Modern Fitted Kitchen/Diner Overlooking Garden
- Newly Fitted Family Bathroom Suite
- Utility Room & Downstairs WC
- Large Enclosed Rear Garden
- Close To Local Amenities & Transport Links
- Well Presented Throughout
- Orlit Construction
Share
Request aValuation
Thinking of selling your property? Click here to book a free property valuation.

