Details
Hillsley Road, Portsmouth, PO6
£240,000
(Sold Subject To Contract)
Description
Situated on the popular Hillsley Road in Portsmouth, this delightful end-terrace house offers a perfect blend of comfort and convenience. With two well-proportioned bedrooms, this property is ideal for small families, couples, or individuals seeking a cosy home. The inviting reception room provides a warm and welcoming space for relaxation and entertaining guests.The heart of the home is the spacious kitchen/breakfast room, which is perfect for enjoying leisurely meals or hosting gatherings with friends and family. This area is designed to be both functional and inviting, making it a wonderful spot to start your day.One of the standout features of this property is the off-street parking available to the rear, providing added convenience in this bustling area. Additionally, the location is superb, with easy access to local amenities, ensuring that all your daily needs are just a stone's throw away. For those who require medical facilities, the QA Hospital is conveniently close, making this home particularly appealing for healthcare professionals or families with medical needs.This end-terrace house on Hillsley Road presents an excellent opportunity for anyone looking to settle in a vibrant community while enjoying the comforts of a well-appointed home. Don't miss the chance to make this lovely property your own.
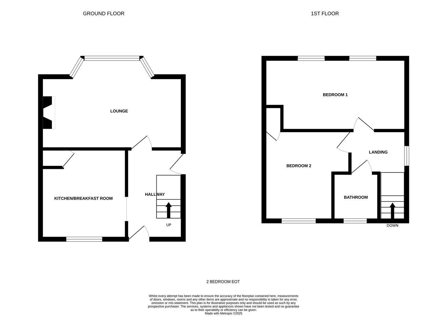
Entrance Hallway
Kitchen/Breakfast Room (3.35m x 3.20m (11'0 x 10'6))
Lounge (5.31m x 3.38m into bay (17'5 x 11'1 into bay))
Landing
Bedroom One (5.31m x 2.69m (17'5 x 8'10))
Bedroom Two (3.33m x 2.57m (10'11 x 8'5))
Bathroom (1.78m x 1.68m (5'10 x 5'6))
Outside
Viewing
Please contact us on 02393 785108 if you wish to arrange a viewing appointment for this property, or require further information.
Energy Performance Certificate
Click here to view the Energy Efficiency Rating and Environmental Impact Rating for this property.
Disclaimer
Nesbitt & Sons - PO16 endeavour to maintain accurate depictions of properties in Virtual Tours, Floor Plans and descriptions, however, these are intended only as a guide and purchasers must satisfy themselves by personal inspection.
Situated on the popular Hillsley Road in Portsmouth, this delightful end-terrace house offers a perfect blend of comfort and convenience. With two well-proportioned bedrooms, this property is ideal for small families, couples, or individuals seeking a cosy home. The inviting reception room provides a warm and welcoming space for relaxation and entertaining guests.The heart of the home is the spacious kitchen/breakfast room, which is perfect for enjoying leisurely meals or hosting gatherings with friends and family. This area is designed to be both functional and inviting, making it a wonderful spot to start your day.One of the standout features of this property is the off-street parking available to the rear, providing added convenience in this bustling area. Additionally, the location is superb, with easy access to local amenities, ensuring that all your daily needs are just a stone's throw away. For those who require medical facilities, the QA Hospital is conveniently close, making this home particularly appealing for healthcare professionals or families with medical needs.This end-terrace house on Hillsley Road presents an excellent opportunity for anyone looking to settle in a vibrant community while enjoying the comforts of a well-appointed home. Don't miss the chance to make this lovely property your own.
Entrance Hallway
Kitchen/Breakfast Room (3.35m x 3.20m (11'0 x 10'6))
Lounge (5.31m x 3.38m into bay (17'5 x 11'1 into bay))
Landing
Bedroom One (5.31m x 2.69m (17'5 x 8'10))
Bedroom Two (3.33m x 2.57m (10'11 x 8'5))
Bathroom (1.78m x 1.68m (5'10 x 5'6))
Outside
Viewing
Please contact us on 02393 785108 if you wish to arrange a viewing appointment for this property, or require further information.
Energy Performance Certificate
Click here to view the Energy Efficiency Rating and Environmental Impact Rating for this property.
Disclaimer
Nesbitt & Sons - PO16 endeavour to maintain accurate depictions of properties in Virtual Tours, Floor Plans and descriptions, however, these are intended only as a guide and purchasers must satisfy themselves by personal inspection.
Features
- Charming End Of Terrace Family Home
- Two Double Bedrooms
- Kitchen/Breakfast Room
- Lounge
- Family Bathroom
- Enclosed Front & Rear Gardens
- Off Street Parking To Rear
- Popular Location Close To Local Amenities & QA Hospital
- Perfect First Time Buy
- Viewing Strongly Recommended
Share
Request aValuation
Thinking of selling your property? Click here to book a free property valuation.

