Details
Ludlow Road, Portsmouth, PO6
£240,000
(Sold Subject To Contract)
Description
Situated in the popular location of Ludlow Road, this charming end-terrace family home presents an excellent opportunity for those seeking comfort and convenience. With three well-proportioned bedrooms, this property is ideal for families or those looking for extra space. The two inviting reception rooms provide ample room for relaxation and entertaining, making it a perfect setting for family gatherings or social events.One of the standout features of this home is the stunning four-piece family bathroom suite, which offers a touch of luxury and practicality. The design is both modern and functional, catering to the needs of a busy household. The property boasts a large enclosed garden, providing a private outdoor space for children to play, gardening enthusiasts to thrive, or simply for enjoying the fresh air. Additionally, the presence of three outbuildings presents exciting opportunities for further development, whether you envision a home office, workshop, or additional storage.Conveniently located close to Queen Alexandra Hospital and a variety of local amenities, this home ensures that daily necessities are just a stone's throw away. The combination of a desirable location, spacious living areas, and potential for further enhancement makes this property a must-see for anyone looking to settle in Portsmouth. Don't miss the chance to make this lovely family home your own.
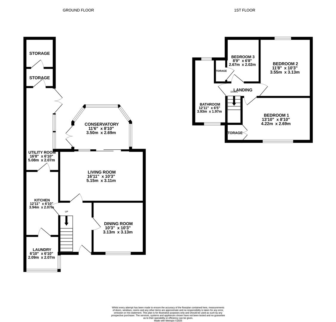
Entrance Hallway
Dining Room (3.12m x 3.12m (10'3 x 10'3))
Living Room (5.26m x 3.12m (17'3 x 10'3))
Conservatory (3.51m x 2.69m (11'6 x 8'10))
Kitchen (3.89m x 2.08m (12'9 x 6'10))
Laundry Room (2.06m x 2.06m (6'9 x 6'9))
Utility Room
Landing
Bedroom One (4.24m x 2.69m (13'11 x 8'10))
Bedroom Two (3.56m x 3.07m (11'8 x 10'1))
Bedroom Three (2.69m x 2.06m (8'10 x 6'9))
Bathroom (3.91m x 2.08m (12'10 x 6'10))
Outside
Garden
Three Outbuildings
AGENTS NOTE
Property is non-standard construction - Howard Steel Frame.
Viewing
Please contact us on 02393 785108 if you wish to arrange a viewing appointment for this property, or require further information.
Energy Performance Certificate
Click here to view the Energy Efficiency Rating and Environmental Impact Rating for this property.
Disclaimer
Nesbitt & Sons - PO16 endeavour to maintain accurate depictions of properties in Virtual Tours, Floor Plans and descriptions, however, these are intended only as a guide and purchasers must satisfy themselves by personal inspection.
Situated in the popular location of Ludlow Road, this charming end-terrace family home presents an excellent opportunity for those seeking comfort and convenience. With three well-proportioned bedrooms, this property is ideal for families or those looking for extra space. The two inviting reception rooms provide ample room for relaxation and entertaining, making it a perfect setting for family gatherings or social events.One of the standout features of this home is the stunning four-piece family bathroom suite, which offers a touch of luxury and practicality. The design is both modern and functional, catering to the needs of a busy household. The property boasts a large enclosed garden, providing a private outdoor space for children to play, gardening enthusiasts to thrive, or simply for enjoying the fresh air. Additionally, the presence of three outbuildings presents exciting opportunities for further development, whether you envision a home office, workshop, or additional storage.Conveniently located close to Queen Alexandra Hospital and a variety of local amenities, this home ensures that daily necessities are just a stone's throw away. The combination of a desirable location, spacious living areas, and potential for further enhancement makes this property a must-see for anyone looking to settle in Portsmouth. Don't miss the chance to make this lovely family home your own.
Entrance Hallway
Dining Room (3.12m x 3.12m (10'3 x 10'3))
Living Room (5.26m x 3.12m (17'3 x 10'3))
Conservatory (3.51m x 2.69m (11'6 x 8'10))
Kitchen (3.89m x 2.08m (12'9 x 6'10))
Laundry Room (2.06m x 2.06m (6'9 x 6'9))
Utility Room
Landing
Bedroom One (4.24m x 2.69m (13'11 x 8'10))
Bedroom Two (3.56m x 3.07m (11'8 x 10'1))
Bedroom Three (2.69m x 2.06m (8'10 x 6'9))
Bathroom (3.91m x 2.08m (12'10 x 6'10))
Outside
Garden
Three Outbuildings
AGENTS NOTE
Property is non-standard construction - Howard Steel Frame.
Viewing
Please contact us on 02393 785108 if you wish to arrange a viewing appointment for this property, or require further information.
Energy Performance Certificate
Click here to view the Energy Efficiency Rating and Environmental Impact Rating for this property.
Disclaimer
Nesbitt & Sons - PO16 endeavour to maintain accurate depictions of properties in Virtual Tours, Floor Plans and descriptions, however, these are intended only as a guide and purchasers must satisfy themselves by personal inspection.
Features
- Lovely Three Bedroom End Of Terrace Family Home
- Close To QA Hospital & Local Amenities
- Well Presented Throughout
- Two Reception Rooms
- Conservatory
- Laundry & Utility Room
- Beautiful Family Bathroom Suite
- Good Size Enclosed Rear Garden With Three Out Buildings
- Modern Fitted Kitchen
- Ideal First Time Buy
Share
Request aValuation
Thinking of selling your property? Click here to book a free property valuation.

