Details
Montague Road, Portsmouth, PO2
£315,000
(Sold Subject To Contract)
Description
Situated on the popular Montague Road in Portsmouth, this charming extended mid-terrace family home offers a delightful blend of original period features and modern living. With three well-proportioned bedrooms, including a master bedroom suite, this property is perfect for families seeking both comfort and style.The heart of the home is undoubtedly the impressive 22ft kitchen/breakfast room, which boasts double doors that open directly onto the enclosed south-facing garden. This inviting outdoor space is ideal for enjoying sunny afternoons and features a summer house that can easily serve as a home office or a tranquil retreat.The property also includes a spacious reception room, providing a welcoming area for relaxation and entertaining guests. With two bathrooms, the home ensures convenience for family living, making morning routines a breeze.Situated close to local schools and amenities, this residence is perfectly positioned for families looking to settle in a vibrant community. The combination of its charming features, spacious layout, and prime location makes this mid-terrace house a wonderful opportunity for those seeking a new home in Portsmouth. Don't miss the chance to make this delightful property your own.
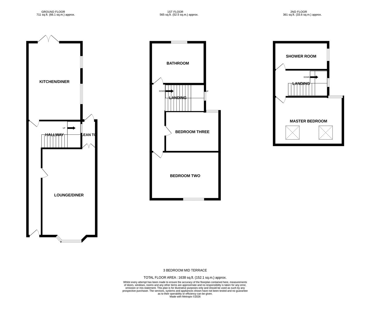
HALLWAY
Radiator, dado rail, stairs to first floor, under stairs storage cupboard, double glazed window to lean to, doors to lounge/diner and kitchen/diner.
LOUNGE/DINER (7.70m into bay x 3.38m (25'3 into bay x 11'1))
Double glazed bay window to front aspect, radiator, feature fireplace with wood burner and tiled hearth, additional feature fireplace with tiled surround and hearth and potential for open fire, three built in storage cupboards, double glazed doors to lean-to.
LEAN-TO
Double glazed window to hallway, double glazed door to garden.
KITCHEN/DINER (6.76m x 3.02m (22'2 x 9'11))
Two double glazed windows to side aspect, double glazed French doors to garden, range of wall and base units, roll top work surfaces, stainless steel sink and drainer unit, integral oven and hob with hood over, space and plumbing for washing machine and dishwasher, space for tumble dryer and American style fridge/freezer, tiled to principal areas, spot lighting.
FIRST FLOOR LANDING
Double glazed window to side aspect, stairs to second floor, doors to.
BATHROOM (3.45m x 3.05m (11'4 x 10'0))
Obscure double glazed window to rear aspect, low level WC, panel enclosed bath, enclosed shower cubicle with mains powered shower, radiator, pedestal mounted wash basin, tiled to principal areas, spot lighting.
BEDROOM THREE (3.48m x 3.43m (11'5 x 11'3))
Double glazed window to rear aspect, feature fireplace, radiator.
BEDROOM TWO (4.39m x 3.48m (14'5 x 11'5))
Double glazed window to front aspect, feature fireplace with tiled surround, radiator.
SECOND FLOOR LANDING
Double glazed window to side aspect, doors to.
MASTER BEDROOM (5.11m x 4.06m (16'9 x 13'4))
Double glazed window to rear aspect, two double glazed Velux windows to front aspect, eaves storage, spot lighting.
SHOWER ROOM
Obscure double glazed window to side aspect, low level WC, pedestal mounted wash basin, fully enclosed shower cubicle with mains shower, chrome heated towel rail, tiled to principal areas, spot lighting.
REAR GARDEN
South facing garden, mainly laid to Astro turf with raised decked areas, summer house/office.
SUMMER HOUSE/OFFICE (2.84m x 1.98m (9'4 x 6'6))
Two double glazed windows, double glazed French doors, power and light, wood burner.
Viewing
Please contact us on 02393 785108 if you wish to arrange a viewing appointment for this property, or require further information.
Energy Performance Certificate
Click here to view the Energy Efficiency Rating and Environmental Impact Rating for this property.
Disclaimer
Nesbitt & Sons - PO16 endeavour to maintain accurate depictions of properties in Virtual Tours, Floor Plans and descriptions, however, these are intended only as a guide and purchasers must satisfy themselves by personal inspection.
Situated on the popular Montague Road in Portsmouth, this charming extended mid-terrace family home offers a delightful blend of original period features and modern living. With three well-proportioned bedrooms, including a master bedroom suite, this property is perfect for families seeking both comfort and style.The heart of the home is undoubtedly the impressive 22ft kitchen/breakfast room, which boasts double doors that open directly onto the enclosed south-facing garden. This inviting outdoor space is ideal for enjoying sunny afternoons and features a summer house that can easily serve as a home office or a tranquil retreat.The property also includes a spacious reception room, providing a welcoming area for relaxation and entertaining guests. With two bathrooms, the home ensures convenience for family living, making morning routines a breeze.Situated close to local schools and amenities, this residence is perfectly positioned for families looking to settle in a vibrant community. The combination of its charming features, spacious layout, and prime location makes this mid-terrace house a wonderful opportunity for those seeking a new home in Portsmouth. Don't miss the chance to make this delightful property your own.
HALLWAY
Radiator, dado rail, stairs to first floor, under stairs storage cupboard, double glazed window to lean to, doors to lounge/diner and kitchen/diner.
LOUNGE/DINER (7.70m into bay x 3.38m (25'3 into bay x 11'1))
Double glazed bay window to front aspect, radiator, feature fireplace with wood burner and tiled hearth, additional feature fireplace with tiled surround and hearth and potential for open fire, three built in storage cupboards, double glazed doors to lean-to.
LEAN-TO
Double glazed window to hallway, double glazed door to garden.
KITCHEN/DINER (6.76m x 3.02m (22'2 x 9'11))
Two double glazed windows to side aspect, double glazed French doors to garden, range of wall and base units, roll top work surfaces, stainless steel sink and drainer unit, integral oven and hob with hood over, space and plumbing for washing machine and dishwasher, space for tumble dryer and American style fridge/freezer, tiled to principal areas, spot lighting.
FIRST FLOOR LANDING
Double glazed window to side aspect, stairs to second floor, doors to.
BATHROOM (3.45m x 3.05m (11'4 x 10'0))
Obscure double glazed window to rear aspect, low level WC, panel enclosed bath, enclosed shower cubicle with mains powered shower, radiator, pedestal mounted wash basin, tiled to principal areas, spot lighting.
BEDROOM THREE (3.48m x 3.43m (11'5 x 11'3))
Double glazed window to rear aspect, feature fireplace, radiator.
BEDROOM TWO (4.39m x 3.48m (14'5 x 11'5))
Double glazed window to front aspect, feature fireplace with tiled surround, radiator.
SECOND FLOOR LANDING
Double glazed window to side aspect, doors to.
MASTER BEDROOM (5.11m x 4.06m (16'9 x 13'4))
Double glazed window to rear aspect, two double glazed Velux windows to front aspect, eaves storage, spot lighting.
SHOWER ROOM
Obscure double glazed window to side aspect, low level WC, pedestal mounted wash basin, fully enclosed shower cubicle with mains shower, chrome heated towel rail, tiled to principal areas, spot lighting.
REAR GARDEN
South facing garden, mainly laid to Astro turf with raised decked areas, summer house/office.
SUMMER HOUSE/OFFICE (2.84m x 1.98m (9'4 x 6'6))
Two double glazed windows, double glazed French doors, power and light, wood burner.
Viewing
Please contact us on 02393 785108 if you wish to arrange a viewing appointment for this property, or require further information.
Energy Performance Certificate
Click here to view the Energy Efficiency Rating and Environmental Impact Rating for this property.
Disclaimer
Nesbitt & Sons - PO16 endeavour to maintain accurate depictions of properties in Virtual Tours, Floor Plans and descriptions, however, these are intended only as a guide and purchasers must satisfy themselves by personal inspection.
Features
- Lovely Extended Mid Terrace Family Home
- Three Double Bedrooms
- Large Four Piece Bathroom Suite & Additional Shower Room
- 25ft Lounge/Diner
- Modern Fitted Kitchen/Breakfast Room
- Charming Period Features Throughout
- Close To Local Schools & Amenities
- Enclosed South Facing Garden
- Summer House/Office
- Well Presented Throughout
Share
Request aValuation
Thinking of selling your property? Click here to book a free property valuation.

