Details
Duncton Road, Waterlooville, PO8
OIRO £475,000
Description
Settled in the peaceful cul-de-sac of Duncton Road, Clanfield, this charming detached family home offers a perfect blend of comfort and convenience. With four spacious bedrooms, this property is ideal for families looking for a calm and comfortable home all within easy reach of the village centre and the A3, with direct links to London.The house boasts two inviting reception rooms, providing ample space for relaxation and entertaining guests. The charming, well-appointed kitchen is designed for both functionality and style. With a bathroom, en-suite and downstairs cloakroom, the home offers ease and practicality for the whole household.Set in a semi-rural location, this home benefits from the serenity of countryside living while still being just a stone's throw away from local amenities. This lovely home has the added benefit of being close to the Queen Elizabeth Country Park and South Downs National Park. The village centre, with its shops and services, is easily accessible, ensuring that you have everything you need within reach.For those with vehicles, the property offers parking for up to three cars, a valuable feature in this desirable area. The quiet surroundings make it an ideal setting for families or anyone looking to escape the hustle and bustle of city life.In summary, this delightful detached house on Duncton Road presents an excellent opportunity for those seeking a spacious family home in a peaceful yet convenient location. Don't miss the chance to make this lovely property your own.
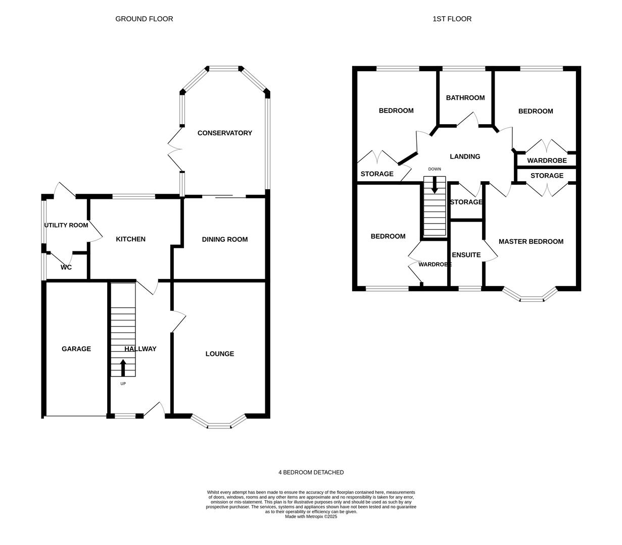
Entrance Hallway
Living Room (4.78m into bay x 3.35m (15'8 into bay x 11'0))
Dining Room (3.02m x 3.00m (9'11 x 9'10))
Conservatory (4.42m x 3.15m (14'6 x 10'4))
Kitchen/Breakfast Room (3.30m x 3.00m (10'10 x 9'10))
Utility Room (2.06m x 1.45m (6'9 x 4'9))
Cloakroom
Landing
Master Bedroom (4.42m into bay x 3.30m (14'6 into bay x 10'10))
En-Suite (2.79m x 1.19m (9'2 x 3'11))
Bedroom Two (3.86m x 2.64m (12'8 x 8'8))
Bedroom Three (3.35m x 2.79m (11'0 x 9'2))
Bedroom Four (2.79m x 2.46m (9'2 x 8'1))
Family Bathroom (2.01m x 1.70m (6'7 x 5'7))
Outside
Front Garden
Driveway
Garage
Rear Garden
Viewing
Please contact us on 02393 785108 if you wish to arrange a viewing appointment for this property, or require further information.
Energy Performance Certificate
Click here to view the Energy Efficiency Rating and Environmental Impact Rating for this property.
Disclaimer
Nesbitt & Sons - PO16 endeavour to maintain accurate depictions of properties in Virtual Tours, Floor Plans and descriptions, however, these are intended only as a guide and purchasers must satisfy themselves by personal inspection.
Settled in the peaceful cul-de-sac of Duncton Road, Clanfield, this charming detached family home offers a perfect blend of comfort and convenience. With four spacious bedrooms, this property is ideal for families looking for a calm and comfortable home all within easy reach of the village centre and the A3, with direct links to London.The house boasts two inviting reception rooms, providing ample space for relaxation and entertaining guests. The charming, well-appointed kitchen is designed for both functionality and style. With a bathroom, en-suite and downstairs cloakroom, the home offers ease and practicality for the whole household.Set in a semi-rural location, this home benefits from the serenity of countryside living while still being just a stone's throw away from local amenities. This lovely home has the added benefit of being close to the Queen Elizabeth Country Park and South Downs National Park. The village centre, with its shops and services, is easily accessible, ensuring that you have everything you need within reach.For those with vehicles, the property offers parking for up to three cars, a valuable feature in this desirable area. The quiet surroundings make it an ideal setting for families or anyone looking to escape the hustle and bustle of city life.In summary, this delightful detached house on Duncton Road presents an excellent opportunity for those seeking a spacious family home in a peaceful yet convenient location. Don't miss the chance to make this lovely property your own.
Entrance Hallway
Living Room (4.78m into bay x 3.35m (15'8 into bay x 11'0))
Dining Room (3.02m x 3.00m (9'11 x 9'10))
Conservatory (4.42m x 3.15m (14'6 x 10'4))
Kitchen/Breakfast Room (3.30m x 3.00m (10'10 x 9'10))
Utility Room (2.06m x 1.45m (6'9 x 4'9))
Cloakroom
Landing
Master Bedroom (4.42m into bay x 3.30m (14'6 into bay x 10'10))
En-Suite (2.79m x 1.19m (9'2 x 3'11))
Bedroom Two (3.86m x 2.64m (12'8 x 8'8))
Bedroom Three (3.35m x 2.79m (11'0 x 9'2))
Bedroom Four (2.79m x 2.46m (9'2 x 8'1))
Family Bathroom (2.01m x 1.70m (6'7 x 5'7))
Outside
Front Garden
Driveway
Garage
Rear Garden
Viewing
Please contact us on 02393 785108 if you wish to arrange a viewing appointment for this property, or require further information.
Energy Performance Certificate
Click here to view the Energy Efficiency Rating and Environmental Impact Rating for this property.
Disclaimer
Nesbitt & Sons - PO16 endeavour to maintain accurate depictions of properties in Virtual Tours, Floor Plans and descriptions, however, these are intended only as a guide and purchasers must satisfy themselves by personal inspection.
Features
- Delightful Four Bedroom Detached Home
- Quiet Cul-De Sac Location
- Integral Garage & Driveway
- Master Bedroom with En-Suite
- Lovely Enclosed Rear Garden
- Conservatory
- Two Reception Rooms
- Modern Fitted Kitchen / Breakfast Room
- Views towards Butser Hill
- Short Walk to Clanfield Village
Share
Request aValuation
Thinking of selling your property? Click here to book a free property valuation.